氣溫驟降,寒潮來襲,你需要一款好的浴霸
轉眼間,天氣越來越冷了。不論是在北方還是南方,冬季洗澡都是一件“極其痛苦”的事情,因為實在是太冷了!!!因此,你需要一款好的浴霸讓身在浴室讓你有一種“如沐春風”的感覺。
[詳細閱讀]TA們懂設計,會生活,更懂你所求
TA們來自五湖四海,可鹽可甜可酸辣,風格各異
TA們時常游走在理想家居與“骨感”現實之間,經驗老到
TA們十八般武藝樣樣精通,只要你想得到的,沒有TA們做不到的
從設計到溝通,再到“落地”,只為打造最合您“心水”的空間
他們就是——巴迪斯精工頂墻展示設計團隊!
接下來讓小編隆重為大家介紹這支團隊的第一名成員。

他——
巴迪斯精工頂墻展示設計團隊中
經驗滿滿的老司機,
談笑間,多少創意idea迸發,
每一間他設計的門店,無一不是大受好評。
楊錦卓 / Yang Jinzhuo
巴迪斯精工頂墻空間設計師

設計師簡介 Basic info
楊錦卓,從事空間展示設計師的工作4年以上,深諳人與自然的和諧之道,擅長打造空間視覺與商業價值相結合的舒適空間。


店面欣賞
酒泉專賣店
沿著河西走廊一路向西,最后一站就是酒泉。西北黃原上,粗糲的風夾雜著的,是悠久歷史與時代生機。
當酒泉的大美之境遇到佛山巴迪斯的精工頂墻,將會碰撞出怎樣的火花?本期帶您走進巴迪斯6代輕奢智慧門店——酒泉專賣店,感受巴迪斯的至臻家居體驗。
1
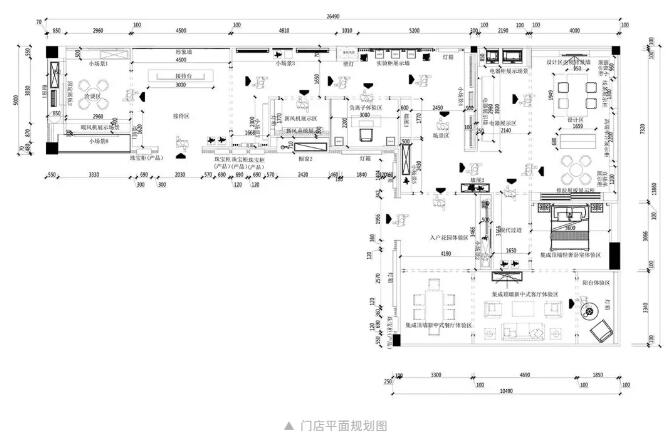
店面整體布局
店面整體著重契合品牌調性“東方奢簡”進行打造,采用大理石、金屬、光線等元素,打造空間的層次感,彰顯質感生活的品味格調,展現現代人舒適、簡約、低調而內斂的生活品質追求。


門店面積225m2,整體劃分為空間體驗區、功能體驗區、產品設計區、產品小場景等,同時門店入口考慮人流、店主需求等因素,多角度考量舒適度、實用度、美觀度的呈現,實現店面空間合理利用的最大化。
2
外立面欣賞
門店外立面以代言人宋佳形象照與小場景展示相結合的形式,提升門店形象,吸引消費者駐足停留與進店參觀。

金奢質感,凸顯層次感的同時不會過于輕浮,演繹有別于敦煌風情的摩登性感。

摩登演繹
小場景
櫥窗內的小場景,仿佛點睛之筆,賦予生活別樣格調。抓住顧客的第一眼印象,展示品牌高端形象,形成良好的消費體驗。

3
店內設計欣賞
店內整體設計中,體驗間明顯是設計師的“寵兒”,通過展現多樣化的家居空間,客廳、餐廳、臥室、浴室、陽臺、過道等日常場景,營造良好的空間氛圍,拉近產品與顧客的距離。

將家的場景,在門店中呈現,讓實體場景化,空間效果看得見。空間與產品的良性融合,升華產品質感的同時,極致演繹浸入式體驗區設計。

點、線、面設計構思,賦予空間視覺層次感與更大空間張力,奢簡輕盈的外形融合東方韻味點綴其中,打造國人自有的理想居所。

一千名顧客,一千個哈姆雷特,如何在有限的空間,最大程度獲得消費者的共鳴,成為門店打造的重中之重。小場景較之體驗區的表達,則是更加彈性的。通過小場景,你可以看到INS風、輕奢風、新中式等主流風格的演繹,以及生活態度的表達。

線上與線下的最直接區別在于實物的體驗感,小商品可以退換,但家裝等大宗商品還是選擇實體店體驗比較靠譜。在巴迪斯終端門店中,除了產品的設計展示,當然還有產品功能體驗了。



可實操的功能體驗區,如功能電器展示墻、龍骨-展示柜、板材-抗油污展示柜,燈板對比測試柜,新風系統等,讓消費者對巴迪斯產品有一個全方位的了解,強化消費者對產品品質的信心。

▲產品設計區
所有終端展示的最終目的都是促成門店與客戶的最終成交,特別設置的設計專區,為消費者提供一個近距離接觸產品、獲取產品信息、體驗產品的空間,為最終成交打出完美助攻。

PROJECTDESCRIPITION
項目概況
項目名稱:巴迪斯酒泉專賣店
項目地址:甘肅省酒泉市富康購物中心二樓
項目面積:225㎡
項目年份:2018年11月
店面設計及軟裝:楊錦卓
空間設計指導:任學威
平面設計指導:陳飛

我為巴迪斯打call
加盟巴迪斯將近11年了,見證巴迪斯一路走來的風風雨雨,品質的匠心堅守、品牌的不斷壯大、強有力的門店保障,是我們的強大后盾。
——李總
設計改變生活
巴迪斯6代輕奢智慧門店
開啟健康、環保、智能家居新體驗
27年只為承托
一個頂,一家夢